El Ayuntamiento de Rivas Vaciamadrid ha abierto el proceso de concesión del Parque de la Luna, situado en el bulevar de la avenida 8 de marzo. El contrato para abrir este nuevo establecimiento hostelero se firmará para un periodo de cuatro años.
El futuro quiosco-bar es una construcción fija de 20 metros cuadrados, levantada en el extremo oeste de la avenida, en su confluencia con la calle María Teresa de León. Se encuentra en el interior de la infraestructura verde del bulevar, limitando con un pequeño parque infantil.

El local cuenta con espacio para la instalación de dos terrazas de 128 y 50 metros cuadrados, cuyas licencias deberán ser solicitadas por la empresa concesionaria, ya que no se encuentran incluidas en la licitación.
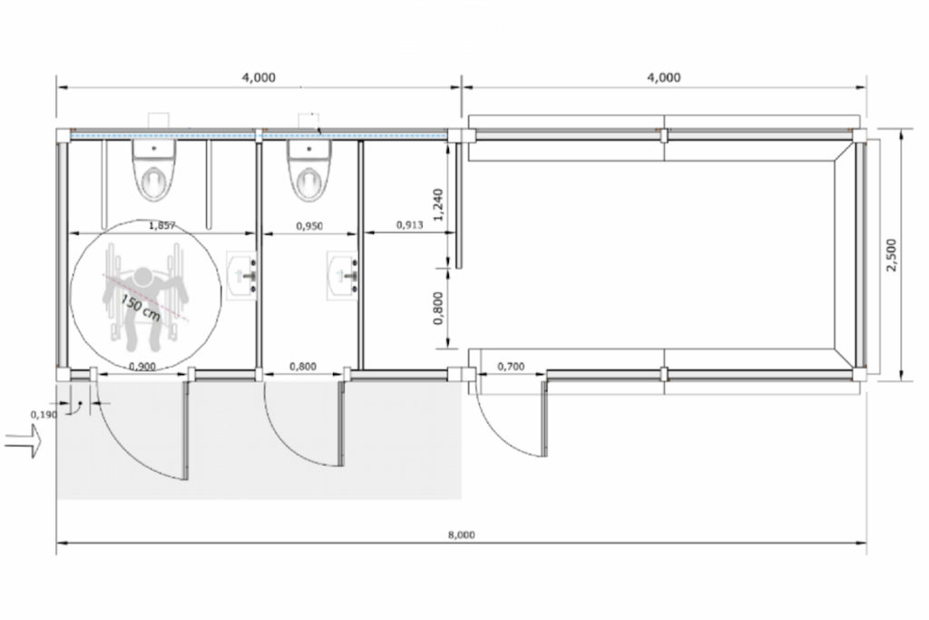
En el interior, el local tiene dos baños, uno de ellos adaptados para personas con movilidad reducida, una zona de almacén y otra de cocina, cámara y zona de atención al público.

Concesión para los mpróximos cuatro años
A cambio de la concesión, la empresa adjudicataria deberá repercutir un canon anual de 2.300 euros al Ayuntamiento de Rivas, aunque este podría ser superior en función de las ofertas presentadas por los interesados. La duración del contrato se establece en cuatro años a contar desde la firma del contrato.
El Ayuntamiento establece unos horarios máximos de apertura para el negocio, dada su cercanía a zonas residenciales. Este será hasta las 00:00 de domingo a jueves y hasta las 01:30 de viernes a sábado en el periodo entre 16 de marzo y el 15 de octubre. El resto del año este horario máximo se verá reducido hasta las 23:30 de domingo a jueves y hasta la 01:00 los viernes y sábados.










0 comentarios